
Domgusto Moderna to nowoczesny dom drewniany o minimalistycznej bryle, energooszczędnej konstrukcji i zdrowym mikroklimacie. Idealny projekt dla osób ceniących design, naturę i nowoczesne technologie. Sprawdź ofertę Domgusto.
Ilość Pomieszczeń
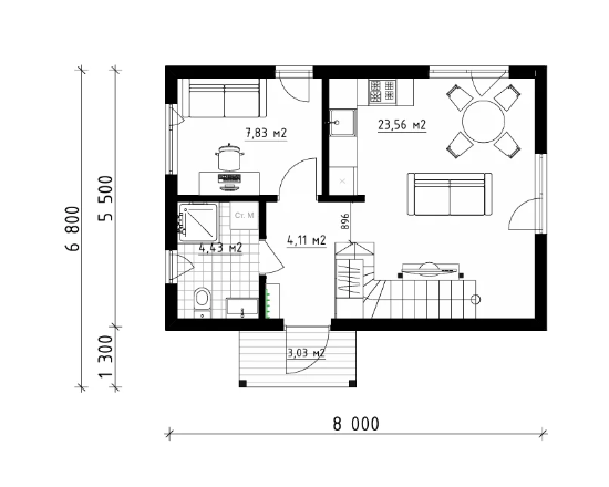
Łazienki - 1
Kuchnia z jadalnią i salonem
Miejsc do spania
Ilość pokoi - 1-3
Powierzchnia całkowita
77m2
Powierzchnia zabudowy
8 m / 5.50 m
45m2
Cena zawiera:
- Materiały wraz z robocizną:
- Ściany zewnętrzne – konstrukcja budynku,
- Konstrukcja ścian działowych,
- Stolarka okienna dwuszybowa – energooszczędna,
- Drzwi zewnętrzne stalowe w kolorze grafitowym,
- Konstrukcja dachu z pokryciem blaszanym gont Janosik,
- Elewacja zewnętrzna budynku,
- Parapety zewnętrzne,
- Nadproża okienne
Dane techniczne domku:
- styl Nowoczesnej Stodoły
- Drewno klasy c24
- ściany o przekroju 45×195
- strop 45×245
- krokwie 45×195
- istnieje bezpłatna możliwość przesunięcia otworów





Zobacz także










